4 Bedroom units House and Lot for sale in Teresa Rizal Boundary of Angono Rizal
Rizal, Teresa, Dulumbayan
Sale: ₱ 12,650,000
Full description
Listing ID: OAK MODEL VILLA VERDE Teresa Rizal
4 Bedroom House for sale in Dulumbayan, Rizal
✨The Oak Model is a contemporary two-story home designed for style, comfort, and functionality. This model is ideal for families seeking modern living in a thoughtfully planned space.
✨Exterior and Façade
The Oak Model boasts a striking modern facade featuring clean lines, a combination of earth tones, and a blend of metal and wood finishes. A gated front yard with a landscaped garden adds curb appeal, while a covered carport provides parking for two vehicles. The large balcony on the second floor enhances both aesthetics and functionality.
✨Interior Design
Artist's renderings showcase a sleek, elegant interior with open concept living and dining areas. Neutral palettes, stylish furniture, and warm lighting create a cozy yet sophisticated ambiance. Every room is designed with attention to detail, offering both beauty and practical space usage.
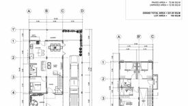
📌 Floor Layout and Features:
Ground Floor (64.53 sqm)
📌 Bedroom 1 (10.73 sqm) Ideal as a guest room or elderly-friendly bedroom
📌 Living Area & Foyer (28.54 sqm) Spacious entry and lounge area for relaxation and entertainment
📌 Dining and Kitchen (21.86 sqm) Seamlessly integrated with the living area for an open concept feel
📌 T&B 1 (3.48 sqm) Convenient ground-floor toilet and bath
📌 Dirty Kitchen & Laundry Area: Located at the back for added convenience
📌 Second Floor (71.83 sqm)
📌 Master’s Bedroom (16.07 sqm) with a suite bath and access to the
📌 balcony (7.23 sqm)
📌 Bedroom 2 (10.07 sqm)
📌 Bedroom 3 (11.82 sqm) Perfect for children or additional family members
📌 T&B 2 (3.28 sqm)
📌 T&B 3 (4.16 sqm) Providing ample facilities for a full household.
📌 Family Area & Staircase (19.64 sqm) A central, flexible space for family bonding or a mini lounge
📌 Outdoor Space
Paved Area: 72.88 sqm – Ideal for parking, pathways, and additional utility
📌 Unpaved Area: 12.99 sqm – Can be landscaped or used for gardening
👉 Total Area Overview
Grand Total Area: 221.83 sqm
👉 Lot Area: 150 sqm
PRE-SELLING❗
Modern Design 2 Storey Single Attached Units
👉 Situated in VILLA VERDE EAST, Teresa Rizal, Along ML Quezon Street, Near All Home Antipolo
Landmarks:
📌 3.8 km or 10 minutes travel time going to Shopwise Antipolo
📌 1.9 km or 5 minutes travel time going to St. John's Wort Montessori School of Antipolo
📌 4.1 km or 10 minutes travel time going to Ynares Center
📌 2.9 km or 6 minutes travel time going to SM Hypermarket
📌 2.9 km or 6 minutes travel time going to Antipolo Doctors Hospital
📌 5km or 15 minutes travel time going to Our Lady of Peace and Good Voyage Shrine Antipolo
📌 6.1 km or 17 minutes travel time going to Robinsons Place Antipolo
📌 6.2 km or 15 minutes travel time going to Hinulugang Taktak
📌 3.2 km or 9 minutes travel time going to Angono Petroglyphs
📌 3.7 km or 10 minutes travel time going to Thunderbird Resorts
📌 3.5 km or 9 minutes travel time going to Eastridge Golf Club
📌 6.5 km or 16 minutes travel time going to SM Center Angono
📌 Near Vista Mall Antipolo
📌 Near All Home Antipolo
📌 Near Transfiguration Church
📌 Near All Major
📌 Establishments
📌 Accessible to All Public and Private Transportation
🌴 Amenities:
📌 Fully landscaped
entrance gate with guardhouse
📌 Concrete roads, curbs and gutters
📌 Cemented sidewalks with promenade trees
📌 Mercury lamps along the roads
📌 Electrical facilities
📌 Multi-purpose Clubhouse
📌 Swimming pool
📌 Basketball court
Total Contract Price: 🅿️12,650,000.00
20% Down payment: 🅿️2,530,000.00
Less: Reservation fee: (🅿️50,000.00)
Net Down payment: 🅿️2,480,000.00
12 mos. to pay 🅿️206,666.66 / mo.
80% Balance: 🅿️10,120,000.00
Bank Financing:
Estimated Monthly Investments:
10 yrs. to pay 117,501.79
15 yrs. to pay 90,961.41
20 yrs. to pay 78,460.26
For inquiries and site viewing: Pls. call or text:
Tomas Ty Jr.
PRC and DHSUD Registered License Salesperson
PRC Reg. No. 003382
DHSUD Reg. No. NCR-A 005085
📱
📱
✨Exterior and Façade
The Oak Model boasts a striking modern facade featuring clean lines, a combination of earth tones, and a blend of metal and wood finishes. A gated front yard with a landscaped garden adds curb appeal, while a covered carport provides parking for two vehicles. The large balcony on the second floor enhances both aesthetics and functionality.
✨Interior Design
Artist's renderings showcase a sleek, elegant interior with open concept living and dining areas. Neutral palettes, stylish furniture, and warm lighting create a cozy yet sophisticated ambiance. Every room is designed with attention to detail, offering both beauty and practical space usage.
📌 Floor Layout and Features:
Ground Floor (64.53 sqm)
📌 Bedroom 1 (10.73 sqm) Ideal as a guest room or elderly-friendly bedroom
📌 Living Area & Foyer (28.54 sqm) Spacious entry and lounge area for relaxation and entertainment
📌 Dining and Kitchen (21.86 sqm) Seamlessly integrated with the living area for an open concept feel
📌 T&B 1 (3.48 sqm) Convenient ground-floor toilet and bath
📌 Dirty Kitchen & Laundry Area: Located at the back for added convenience
📌 Second Floor (71.83 sqm)
📌 Master’s Bedroom (16.07 sqm) with a suite bath and access to the
📌 balcony (7.23 sqm)
📌 Bedroom 2 (10.07 sqm)
📌 Bedroom 3 (11.82 sqm) Perfect for children or additional family members
📌 T&B 2 (3.28 sqm)
📌 T&B 3 (4.16 sqm) Providing ample facilities for a full household.
📌 Family Area & Staircase (19.64 sqm) A central, flexible space for family bonding or a mini lounge
📌 Outdoor Space
Paved Area: 72.88 sqm – Ideal for parking, pathways, and additional utility
📌 Unpaved Area: 12.99 sqm – Can be landscaped or used for gardening
👉 Total Area Overview
Grand Total Area: 221.83 sqm
👉 Lot Area: 150 sqm
PRE-SELLING❗
Modern Design 2 Storey Single Attached Units
👉 Situated in VILLA VERDE EAST, Teresa Rizal, Along ML Quezon Street, Near All Home Antipolo
Landmarks:
📌 3.8 km or 10 minutes travel time going to Shopwise Antipolo
📌 1.9 km or 5 minutes travel time going to St. John's Wort Montessori School of Antipolo
📌 4.1 km or 10 minutes travel time going to Ynares Center
📌 2.9 km or 6 minutes travel time going to SM Hypermarket
📌 2.9 km or 6 minutes travel time going to Antipolo Doctors Hospital
📌 5km or 15 minutes travel time going to Our Lady of Peace and Good Voyage Shrine Antipolo
📌 6.1 km or 17 minutes travel time going to Robinsons Place Antipolo
📌 6.2 km or 15 minutes travel time going to Hinulugang Taktak
📌 3.2 km or 9 minutes travel time going to Angono Petroglyphs
📌 3.7 km or 10 minutes travel time going to Thunderbird Resorts
📌 3.5 km or 9 minutes travel time going to Eastridge Golf Club
📌 6.5 km or 16 minutes travel time going to SM Center Angono
📌 Near Vista Mall Antipolo
📌 Near All Home Antipolo
📌 Near Transfiguration Church
📌 Near All Major
📌 Establishments
📌 Accessible to All Public and Private Transportation
🌴 Amenities:
📌 Fully landscaped
entrance gate with guardhouse
📌 Concrete roads, curbs and gutters
📌 Cemented sidewalks with promenade trees
📌 Mercury lamps along the roads
📌 Electrical facilities
📌 Multi-purpose Clubhouse
📌 Swimming pool
📌 Basketball court
Total Contract Price: 🅿️12,650,000.00
20% Down payment: 🅿️2,530,000.00
Less: Reservation fee: (🅿️50,000.00)
Net Down payment: 🅿️2,480,000.00
12 mos. to pay 🅿️206,666.66 / mo.
80% Balance: 🅿️10,120,000.00
Bank Financing:
Estimated Monthly Investments:
10 yrs. to pay 117,501.79
15 yrs. to pay 90,961.41
20 yrs. to pay 78,460.26
For inquiries and site viewing: Pls. call or text:
Tomas Ty Jr.
PRC and DHSUD Registered License Salesperson
PRC Reg. No. 003382
DHSUD Reg. No. NCR-A 005085
📱
📱
About
Key features
-
Beds: 4
-
Baths: 3
-
Usable area: 221.23 m2
-
Land area: 150 m2
-
Floor: 2
Facilities
-
Swimming pool
-
Security
-
Car park
-
Balcony
-
24-hour security
-
Electricity
-
Water
-
Built-in wardrobe
-
Built-in kitchen
-
Club house
-
Open space
-
Basketball court
