FOR SALE SINGLE ATTACHED HOUSE AND LOT IN GUADALUPE CEBU CITY, PHILIPPINES
Cebu, Cebu City, Guadalupe
Sale: ₱ 19,500,000
Rent: Contact for price
Rent: Contact for price
Full description
Listing ID: 0194e2f4-693a-7440-83ec-3af382309ee6
3 Bedroom House for Sale or Rent in Guadalupe, Cebu
Single Attached House and Lot‼️
📍Guada 4, Maria Theresa II, Brgy. Guadalupe
• 3 Bedroom Unit
• Lot Size : 110 sqm
• Floor Area : 113 sqm
House Features:
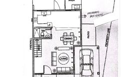
• Ground Floor:
Living Area
Dining Area
Spaciouse Kitchen Area
1 Toilet & Bath
Service Area
Porch
Private Patio
2 Car Port
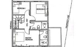
• Second Floor
Master Bedroom with balcony and
en-suite toilet & bath
Bedroom 2
Bedroom 3
Hallway
Common Toilet & Bath
📍Guada 4, Maria Theresa II, Brgy. Guadalupe
• 3 Bedroom Unit
• Lot Size : 110 sqm
• Floor Area : 113 sqm
House Features:
• Ground Floor:
Living Area
Dining Area
Spaciouse Kitchen Area
1 Toilet & Bath
Service Area
Porch
Private Patio
2 Car Port
• Second Floor
Master Bedroom with balcony and
en-suite toilet & bath
Bedroom 2
Bedroom 3
Hallway
Common Toilet & Bath
Key features
-
Beds: 3
-
Baths: 2
-
Usable area: 113 m2
-
Land area: 110 m2
Facilities
-
Car park
-
Garden
-
Electricity
-
Water
-
Patio
-
Cellar
-
Grill
